
電液動扇形閘門是根據建材行業的特殊需要,用作水泥熟料庫除塵設備的理想卸料裝置。扇形閥門在出料口處設置了防塵罩,避免了灰塵飛揚;采用電液推桿作動力源,取代氣缸傳動,節約了工程投資成本;扇形閥門閥體采用階臺結構,減少了料流沖擊;扇形閥門閥體關鍵部位鋪設柵欄結構的耐磨襯板,減少了襯板直接磨損。
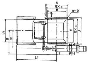
扇形閥門技術參數表:
| TDSZ-30 | TDSZ-40 | TDSZ-50 | TDSZ-60 | TDSZ-70 | TDSZ-80 | |
| 電液推桿型號 | DYZ700-280/110-P | DYTZ700-280/110-P | DYTZ700-300/110-P | DYTZ700-300/110-P | DYTZ700-350/110-P | DYTZ700-350/110-P |
| 功率KW | 1.1 | 1.5 | 1.5 | 2.2 | 2.2 | 2.2 |
| W | 300 | 400 | 500 | 600 | 700 | 800 |
| A | 400 | 500 | 626 | 726 | 840 | 940 |
| A1 | 120 | 220 | 320 | 360 | 460 | 560 |
| A2 | 150 | 250 | 350 | 390 | 490 | 590 |
| B | 350 | 400 | 450 | 500 | 550 | 600 |
| B1 | 470 | 520 | 570 | 620 | 670 | 720 |
| L | 300 | 350 | 400 | 450 | 500 | 550 |
| L1 | 800 | 900 | 1050 | 1200 | 1400 | 1550 |
| L2 | 1175 | 1175 | 1220 | 1220 | 1340 | 1340 |
| H | 380 | 540 | 680 | 750 | 900 | 1050 |
| H1 | 429 | 429 | 513 | 513 | 560 | 560 |
| H2 | 170 | 170 | 190 | 190 | 190 | 191 |
| H3 | 60 | 60 | 70 | 70 | 80 | 80 |
| H4 | 340 | 480 | 610 | 670 | 820 | 950 |
| H5 | 400 | 450 | 550 | 650 | 800 | 900 |
| l | 280 | 280 | 350 | 350 | 400 | 400 |
| N×a | 2x175 | 3x150 | 4x140 | 4x165 | 5x150 | 5x174 |
| n×Φ | 8-18 | 12-18 | 16-18 | 16-18 | 20-22 | 20-22 |
TDSZ型扇形閥門外形示意圖:


關鍵詞:


